JULIA – O casă din lemn termoizolabila spațioasă și luminoasă, ideală pentru viața de familie
Casa din lemn izolată JULIA este alegerea perfectă dacă îți dorești un cămin primitor, bine compartimentat și eficient energetic. Cu o arhitectură modernă și spații generoase, acest model creează un echilibru ideal între confort, funcționalitate și estetică.
Materiale premium pentru un cămin durabil și eficient
Construită din lemn de pin nordic stratificat, casa JULIA oferă o izolație excepțională, menținând căldura în sezonul rece și un climat răcoros vara. Peretele dublu de 44 mm, împreună cu izolația interioară optionala, asigură eficiență energetică superioară, reducând semnificativ consumul de energie.
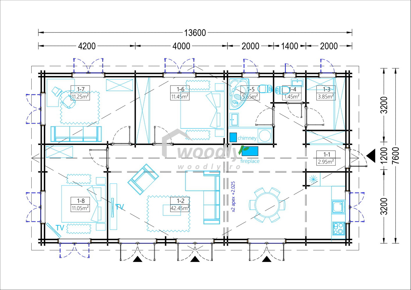
Un living spațios de 44 m² – inima casei
Camera de zi generoasă, cu bucătărie deschisă, este concepută pentru a deveni locul preferat al familiei, perfect pentru întâlniri, cine alături de cei dragi sau relaxare în fața unui șemineu cald. Designul aerisit și modern, completat de ferestrele mari, creează un spațiu luminat, primitor și reconfortant.
Casă din lemn izolată – Intimitate și confort în fiecare colț al casei
Cu 3 dormitoare bine compartimentate, fiecare membru al familiei beneficiază de un spațiu personalizat, liniștit și confortabil. Baia mare adaugă un plus de lux, iar camera suplimentară de la intrare poate fi transformată în dressing, birou sau spațiu de depozitare.
O casă luminoasă, conectată cu natura
Designul casei include ferestre mari, care permit luminii naturale să inunde interiorul, oferind un mediu plăcut și sănătos. Posibilitatea de a adăuga o terasă spațioasă transformă spațiul într-o oază perfectă pentru relaxare, ideală pentru a savura diminețile liniștite sau serile petrecute cu familia și prietenii.
Casă din lemn izolată – Montaj rapid și opțiuni de personalizare
Casa JULIA vine sub formă de kit ușor de asamblat, cu posibilități variate de personalizare. Poți alege finisajele interioare și exterioare potrivite stilului tău, pentru a crea locuința visurilor tale.
Casă din lemn izolată JULIA – O investiție sigură pentru viitorul familiei tale
Interiorul generos include 3 dormitoare, un living impresionant de 44 mp cu bucătărie deschisă și o baie spațioasă. De asemenea, dispune de o cameră suplimentară lângă intrare, ideală pentru dressing sau birou. Indiferent dacă o folosești ca locuință permanentă sau casă de vacanță, JULIA este o alegere excelentă pentru un stil de viață relaxat și armonios.
















Recenzii
Nu există recenzii până acum.