Case din Lemn. La cheie. In toată România.
Casă din lemn la cheie, KAYA 4L, modulară, izolată, 50mp + 5mp terasă acoperită, living, 2 dormitoare, 2 băi, perete dublu 44mm + izolație + 20mm, 6x8m,
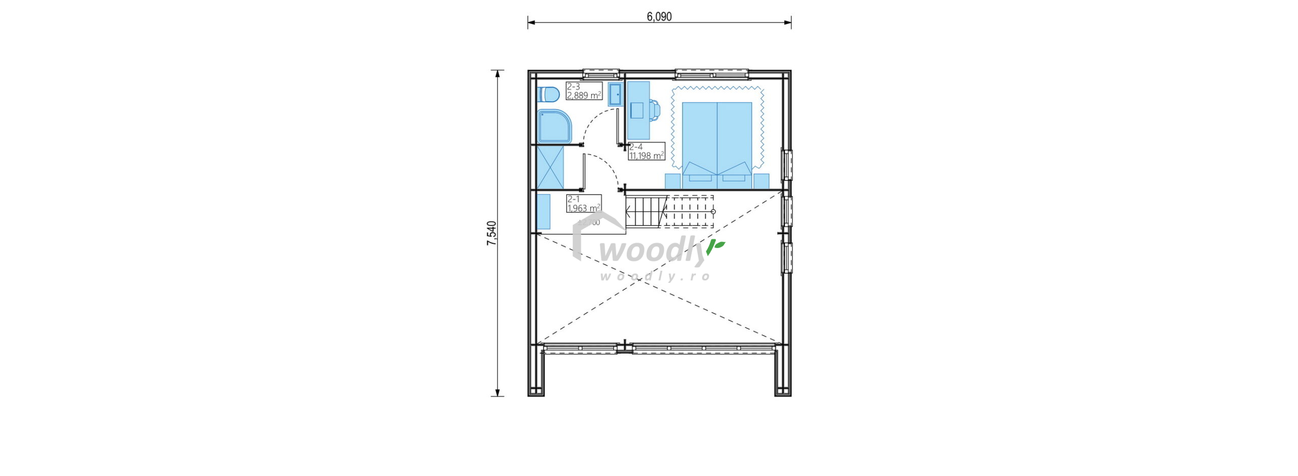
Casă din lemn izolată KAYA 4L, 50mp +5mp verandă , cu design modern, bucătărie open-space, dormitor spațios, cameră versatilă și 2 băi, ideală pentru un trai confortabil și eficient în orice sezon.
VARIANTĂ DE PERETE DISPONIBILĂ:

31.763 €TVA inclus | MONTAJ GRATUIT*
PRETUL INCLUDE: Kitul din lemn (pereti, grinzi, tavane), Usi si ferestre din lemn cu sticla dubla, Feronerie metalica, Tratament lemn, Proiect arhitectural, Izolatie vata bazaltica la modelele cu perete dublu, Montaj gratuit, Garantie pana la 10 Ani in functie de model, Revizii anuale pe perioada garantiei, TVA.
DOTARI OPTIONALE (neincluse in pret): Izolatii suplimentare pana la 200 mm grosime, Ferestre termoizolante PVC+termopan, Instalatii electrice/sanitare, Pardoseli, Tabla acoperis, Vopsea exterior/interior, Obloane, Module atasabile de terase, magazii, toaleta.
EXCLUSIV IN SARCINA BENEFICIARULUI: Fundatie/placa, Avize/autorizatii de constructie.
ESALONARE PLATI: 30% la semnare contract, 30% la finalizare fabricare, 40% la montaj.
Specificații produs
Descriere detaliată
Dotări Incluse
| Lemn utilizat | Pin Nordic cu creștere lentă |
|---|---|
| Pereți / configurație | Izolată. Perete dublu din Lemn masiv de 44mm + Izolație + 20mm |
| Ferestre Lemn cu sticla dubla | 1 * 138 x 105 cm; 10 * 70 x 192 cm (Vitrină); 5 * 85 x 192 cm (vitrină); 4 * 85 x 192 cm (usa de balcon); 1 * 161 x 192 cm (vitrină), 1 * 161 x 192 cm (uşă de balcon) |
| Uși Lemn cu sticla dubla | 1 * 85 x 192 cm ( intrare), 6 * 85 x 192 cm (internă) |
| Camere / număr | 4, 5, 6 |
| Protecție lemn / Tratament lemn | fungicid si insecticid |
| Garanție Antiputrezire | 10 ANI |
| Acoperiş / configurație | panouri lemn pin nordic 20 mm nut si feder |
| Acoperiș / grinzi | Grinzi 130mm x 60mm lemn masiv pin nordic |
| Pardoseală / grinzi | Grinzi 50x70mm sub padoseală tratate antiumezeală prin Impregnare sub presiune in Autoclavă |
| Feronerie montaj kit | Inclus in kit |
| Manual de asamblare | Inclus in kit |
| Proiect construcție | Inclus in kit |
| Facilități | Baie |
| Izolație | IZOLATĂ TERMIC |
Dotări Opționale (incluse la cerere)
| Pardoseală / configurație (opțional) | panouri 20 mm nut si feder lemn pin nordic |
|---|---|
| Protecție lemn / Vopsea lemn (opțional) | Vopsea ICA / Italia Alb, Gri, Maro, Natur |
| Acoperiș / invelitoare | Tabla sau Șindrilă bituminoasă |
Dimensiuni
| Dimensiuni / exterior: Lățime x Adâncime (cm) | 6 x 8 |
|---|---|
| Dimensiuni / inălțime la coamă (cm) | 553 |
| Streașină / lățime (cm) | 0 |
| Streașină / inălțime (cm) | 506 |
| Pardoseala / suprafață (mp) | 55 |
| Placa Beton (fundație) / suprafață minimă (mp) | 48 |
| Acoperiş / Suprafață (mp) | 45 |
| Acoperiș / înclinație | 3° |
| Lățime (front) m | 6 |
| Lungime (adâncime) m | 8 |
Alte specificații
| Model | KAYA 4L |
|---|---|
| Tip produs/dotări | Casa Pin Nordic |
| Brand | Woodly Pin Nordic |
Casă din lemn izolată KAYA 4L – Casă mică, spațiu mare și atmosferă modernă
Casă din lemn izolată KAYA 4L combină perfect funcționalitatea cu un design contemporan inspirat de liniile curate ale arhitecturii moderne. Placarea verticală atent lucrată și ferestrele mari aduc un aer de rafinament și deschid interiorul spre lumină naturală.
Bucătăria de 20 mp este perfectă pentru activități împreună: gătitul, mesele într-un cadru prietenos sau jocurile de societate cu familia.
Confort pe două niveluri
Dormitorul spațios situat la etaj oferă liniște, în timp ce cele două spații de baie, câte una pe fiecare nivel, asigură confort și comoditate pentru toți membrii familiei.
Terasă pentru relaxare în aer liber
Terasă acoperită de 5 mp, un spațiu perfect pentru a te relaxa la umbră sau pentru a petrece timp în aer liber. Extensia opțională de 7 mp permite ți mai mult spațiu pentru activități de relaxare sau socializare.
Casă din lemn izolată KAYA 4L – Soluția ideală pentru un trai modern și confortabil
Cu un design contemporan, o compartimentare inteligentă și materiale durabile, Casa din lemn KAYA 4L este perfectă ca reședință permanentă, casă de vacanță sau spațiu de lucru relaxat, adaptat stilului tău de viață.
Investiție sigură într-o locuință practică și modernă
Casa din lemn izolat KAYA 4L este o alegere inteligentă pentru cei care caută un echilibru perfect între confort și eficiență. Designul său compact și spații răspunde tuturor cerințelor unei vieți moderne. Cu finisaje de calitate și un aspect contemporan, casa KAYA 4L adaugă în dreptul momentului petrecut acasă. Este ideală atât pentru familii mici, cât și pentru cupluri care vor un spațiu personalizat și plin de lumină naturală.
Spațiul interior poate fi adaptat cu ușurință pentru a răspunde nevoilor tale de zi cu zi. KAYA 4L oferă libertatea de a transforma fiecare cameră într-un colț practic, modern și plin de personalitate.
Alege să investești într-o casă din lemn care vă oferă confort real și o experiență autentică de locuire!
Imaginile si videoclipurile au doar scop ilustrativ si pot contine diferente fata de produsul din fabrica. Produsul nu vine vopsit din fabrica.
Numai clienții autentificați, care au cumpărat acest produs, pot să scrie o recenzie.






















Recenzii
Nu există recenzii până acum.