Case din Lemn. La cheie. In toată România.
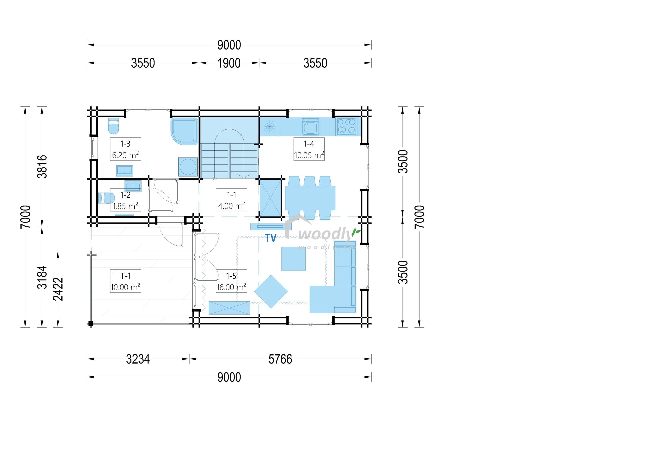
Casă din lemn la cheie, DORIS, modulară, izolată, 126mp, mansarda, livig, 2 dormitoare, 3 băi, verandă, perete dublu de 44mm + Izolație + 44mm, 9x7m
Casă din lemn izolată DORIS – Living spatios, 2 dormitare mari la mansardă, 3 băi, terasă acoperită și ferestre mari pentru lumină naturală.
VARIANTĂ DE PERETE DISPONIBILĂ:

43.040 €TVA inclus | MONTAJ GRATUIT*
PRETUL INCLUDE: Kitul din lemn (pereti, grinzi, tavane), Usi si ferestre din lemn cu sticla dubla, Feronerie metalica, Tratament lemn, Proiect arhitectural, Izolatie vata bazaltica la modelele cu perete dublu, Montaj gratuit, Garantie pana la 10 Ani in functie de model, Revizii anuale pe perioada garantiei, TVA.
DOTARI OPTIONALE (neincluse in pret): Izolatii suplimentare pana la 200 mm grosime, Ferestre termoizolante PVC+termopan, Instalatii electrice/sanitare, Pardoseli, Tabla acoperis, Vopsea exterior/interior, Obloane, Module atasabile de terase, magazii, toaleta.
EXCLUSIV IN SARCINA BENEFICIARULUI: Fundatie/placa, Avize/autorizatii de constructie.
ESALONARE PLATI: 30% la semnare contract, 30% la finalizare fabricare, 40% la montaj.
Specificații produs
Descriere detaliată
Dotări Incluse
| Lemn utilizat | Pin Nordic cu creștere lentă |
|---|---|
| Pereți / configurație | Izolată. Perete dublu din Lemn masiv de 44mm + Izolație + 44mm |
| Ferestre Lemn cu sticla dubla | 1 * 700 x 1080 mm, 8 * 1380 x 1050 mm, 1 * 850 x 1920 mm (vitrină), 1 * 1610 x 1920 mm (uşă de balcon) |
| Uși Lemn cu sticla dubla | 1 * 850 x 1920 mm; 5 * 850 x 1920 mm |
| Camere / număr | 3, 4, 5 |
| Protecție lemn / Tratament lemn | fungicid si insecticid |
| Garanție Antiputrezire | 10 ANI |
| Acoperiş / configurație | panouri lemn pin nordic 20 mm nut si feder |
| Acoperiș / grinzi | Grinzi 130mm x 60mm lemn masiv pin nordic |
| Pardoseală / grinzi | Grinzi 50x70mm sub padoseală tratate antiumezeală prin Impregnare sub presiune in Autoclavă |
| Feronerie montaj kit | Inclus in kit |
| Manual de asamblare | Inclus in kit |
| Proiect construcție | Inclus in kit |
| Facilități | Baie, Magazie, Mansarda, Terasa, Veranda/Pridvor |
| Izolație | IZOLATĂ TERMIC |
Dotări Opționale (incluse la cerere)
| Pardoseală / configurație (opțional) | panouri 20 mm nut si feder lemn pin nordic |
|---|---|
| Protecție lemn / Vopsea lemn (opțional) | Vopsea ICA / Italia Alb, Gri, Maro, Natur |
| Acoperiș / invelitoare | Tabla sau Șindrilă bituminoasă |
Dimensiuni
| Dimensiuni / exterior: Lățime x Adâncime (cm) | 9 x 7 |
|---|---|
| Dimensiuni / inălțime la coamă (cm) | 600 |
| Streașină / lățime (cm) | 50 |
| Streașină / inălțime (cm) | 290 |
| Pardoseala / suprafață (mp) | 126 |
| Placa Beton (fundație) / suprafață minimă (mp) | 65 |
| Acoperiş / Suprafață (mp) | 105 |
| Acoperiș / înclinație | 40° |
| Lățime (front) m | 9 |
| Lungime (adâncime) m | 7 |
Alte specificații
| Model | DORIS |
|---|---|
| Tip produs/dotări | Casa Pin Nordic |
| Brand | Woodly Pin Nordic |
Imaginile si videoclipurile au doar scop ilustrativ si pot contine diferente fata de produsul din fabrica. Produsul nu vine vopsit din fabrica.
5.00/5Fotografii și recenzii clienți
- Casă din lemn izolată cu mansardă, terasă acoperită, living, 2 dormitoare și 3 băi, Doris




Numai clienții autentificați, care au cumpărat acest produs, pot să scrie o recenzie.





















