Case din Lemn. La cheie. In toată România.
Casă din lemn la cheie, AVON, modulară, izolată, 90mp, living, 3 dormitoare, terasa acoperita, perete dublu de 44mm + Izolație + 44mm, 6x15m
Căutați o casă din lemn rezidentiala spațioasă și primitoare? Casă din lemn izolată AVON vă oferă 90 mp, 4 camere și o terasă acoperită – confort și natură, într-un singur loc!
VARIANTĂ DE PERETE DISPONIBILĂ:

34.976 €TVA inclus | MONTAJ GRATUIT*
PRETUL INCLUDE: Kitul din lemn (pereti, grinzi, tavane), Usi si ferestre din lemn cu sticla dubla, Feronerie metalica, Tratament lemn, Proiect arhitectural, Izolatie vata bazaltica la modelele cu perete dublu, Montaj gratuit, Garantie pana la 10 Ani in functie de model, Revizii anuale pe perioada garantiei, TVA.
DOTARI OPTIONALE (neincluse in pret): Izolatii suplimentare pana la 200 mm grosime, Ferestre termoizolante PVC+termopan, Instalatii electrice/sanitare, Pardoseli, Tabla acoperis, Vopsea exterior/interior, Obloane, Module atasabile de terase, magazii, toaleta.
EXCLUSIV IN SARCINA BENEFICIARULUI: Fundatie/placa, Avize/autorizatii de constructie.
ESALONARE PLATI: 30% la semnare contract, 30% la finalizare fabricare, 40% la montaj.
Specificații produs
Descriere detaliată
Dotări Incluse
| Lemn utilizat | Pin Nordic cu creștere lentă |
|---|---|
| Pereți / configurație | Izolată. Perete dublu din Lemn masiv de 44mm + Izolație + 44mm |
| Ferestre Lemn cu sticla dubla | 1* 70 cm x 105 cm, 5* 138 cm x 105 cm |
| Uși Lemn cu sticla dubla | 6* 85 cm x 192 cm, 2* 161 cm x 192 cm |
| Camere / număr | 3, 4, 5 |
| Protecție lemn / Tratament lemn | fungicid si insecticid |
| Garanție Antiputrezire | 10 ANI |
| Acoperiş / configurație | panouri lemn pin nordic 20 mm nut si feder |
| Acoperiș / grinzi | Grinzi 130mm x 60mm lemn masiv pin nordic |
| Pardoseală / grinzi | Grinzi 50x70mm sub padoseală tratate antiumezeală prin Impregnare sub presiune in Autoclavă |
| Feronerie montaj kit | Inclus in kit |
| Manual de asamblare | Inclus in kit |
| Proiect construcție | Inclus in kit |
| Facilități | Baie, Mansarda, Terasa, Veranda/Pridvor |
| Izolație | IZOLATĂ TERMIC |
Dotări Opționale (incluse la cerere)
| Pardoseală / configurație (opțional) | panouri 20 mm nut si feder lemn pin nordic |
|---|---|
| Protecție lemn / Vopsea lemn (opțional) | Vopsea ICA / Italia Alb, Gri, Maro, Natur |
| Acoperiș / invelitoare | Tabla sau Șindrilă bituminoasă |
Dimensiuni
| Dimensiuni / exterior: Lățime x Adâncime (cm) | 6 x 15 |
|---|---|
| Dimensiuni / inălțime la coamă (cm) | 304 |
| Streașină / lățime (cm) | 40 |
| Streașină / inălțime (cm) | 236 |
| Pardoseala / suprafață (mp) | 90 |
| Placa Beton (fundație) / suprafață minimă (mp) | 93 |
| Acoperiş / Suprafață (mp) | 103 |
| Acoperiș / înclinație | 30° |
| Lățime (front) m | 6 |
| Lungime (adâncime) m | 15 |
Alte specificații
| Model | AVON |
|---|---|
| Tip produs/dotări | Casa Pin Nordic |
| Brand | Woodly Pin Nordic |
Casă din lemn izolată Pin Nordic AVON – Funcționalitate și estetică într-un singur loc
Dacă visezi la o reședință de vacanță primitoare și funcțională, casă din lemn izolată pin nordic AVON este o alegere excelentă. Designul său inteligent îți oferă spațiu suficient pentru toate activitățile zilnice, fără a compromite confortul și intimitatea.
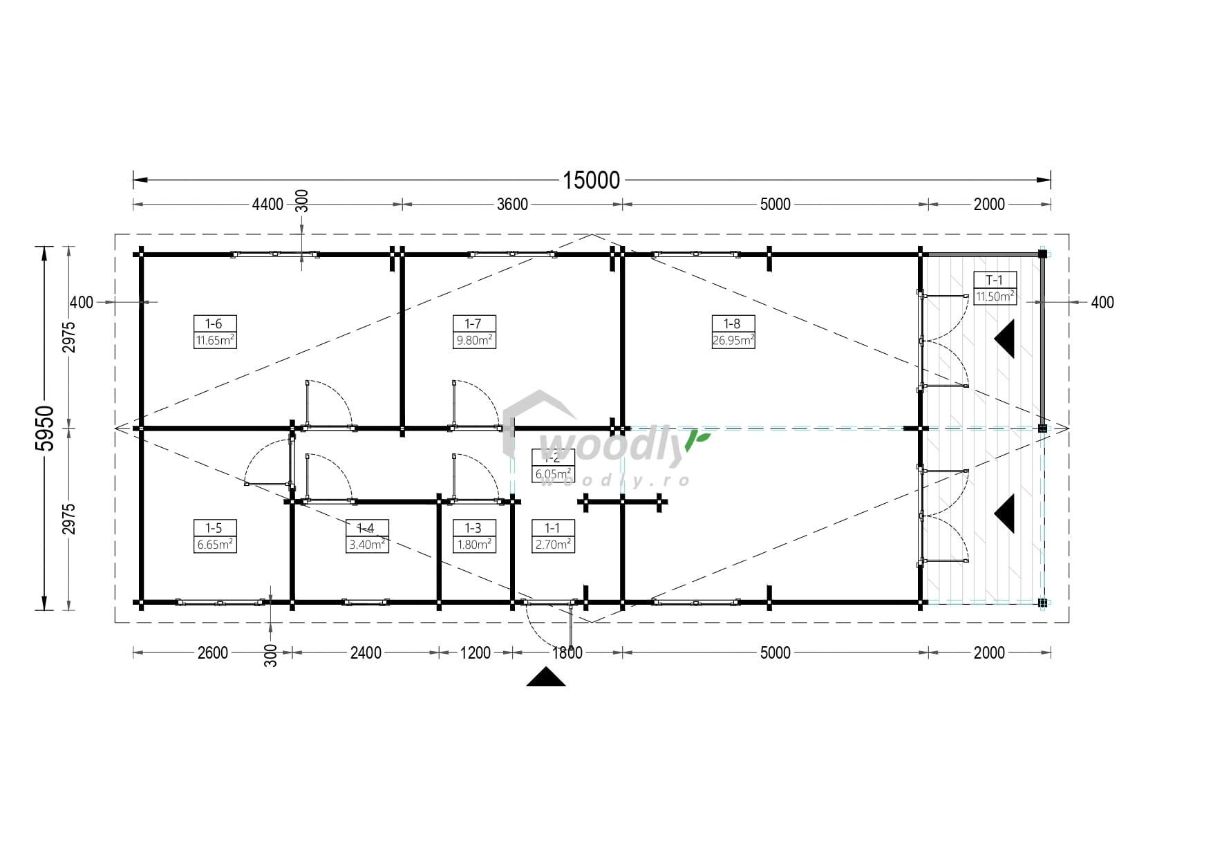
Livingul de 27 mp poate fi amenajat cu o bucătărie modernă, o zonă de luat masa și un spațiu de relaxare, creând un cadru plăcut pentru momente petrecute alături de cei dragi. În plus, cele două dormitoare asigură suficient loc pentru odihnă și intimitate, fiind perfecte pentru o familie sau pentru oaspeți.
Baia și WC-ul separat contribuie la un confort sporit, iar numeroasele camere mai mari și mai mici permit organizarea eficientă a spațiului, în funcție de necesități.
O terasă spațioasă pentru momente de relaxare
Una dintre cele mai apreciate caracteristici ale casei AVON este terasa acoperită de 11,5 mp. Aceasta creează un spațiu perfect pentru relaxare în aer liber, indiferent de vreme. Poți savura soarele dimineții, o carte bună sau o cină cu familia, bucurându-te de confortul unui spațiu umbrit și protejat de ploaie.
În plus, acoperișul elegant cu surplombă adaugă un plus de estetică tradițională, subliniind aspectul clasic al casei.
Locuință pentru toate anotimpurile datorită optiuni de izolației termice
Unul dintre cele mai mari avantaje ale casei de lemn AVON este faptul ca poate fi izolața termic. Aceasta include:
- Pereți dubli care sunt pregatiti pentru un cu strat de izolație de 100 mm (optional) pentru a menține temperatura optimă în interior.
Datorită acestei configurații, casa poate fi utilizată în orice perioadă a anului, oferind căldură iarna și un climat plăcut vara.
Investiția perfectă pentru un stil de viață natural
Construită din lemn masiv durabil, casa AVON este ideală pentru cei care caută un refugiu departe de agitația urbană. Fie că este folosită ca reședință secundară, casă de vacanță sau locuință permanentă, acest model oferă tot confortul necesar pentru a trăi mai aproape de natură, fără compromisuri.
Casa AVON – tradiție, confort și funcționalitate într-o locuință de vis!
Imaginile si videoclipurile au doar scop ilustrativ si pot contine diferente fata de produsul din fabrica. Produsul nu vine vopsit din fabrica.
Numai clienții autentificați, care au cumpărat acest produs, pot să scrie o recenzie.
















Recenzii
Nu există recenzii până acum.