Case din Lemn. La cheie. In toată România.
Căsuță de grădină din lemn la cheie, DREUX TP, modulară, 12 mp, acoperiș într-o apă, perete unic de 44mm, 4x3m
Căsuță de grădină din lemn de 12 mp, cu acoperiș într-o apă și pereți de 44 mm – un spațiu confortabil pentru lucru, relaxare sau hobby-uri.
VARIANTĂ DE PERETE DISPONIBILĂ:

6.080 €TVA inclus | MONTAJ GRATUIT*
PRETUL INCLUDE: Kitul din lemn (pereti, grinzi, tavane), Usi si ferestre din lemn cu sticla dubla, Feronerie metalica, Tratament lemn, Proiect arhitectural, Izolatie vata bazaltica la modelele cu perete dublu, Montaj gratuit, Garantie pana la 10 Ani in functie de model, Revizii anuale pe perioada garantiei, TVA.
DOTARI OPTIONALE (neincluse in pret): Izolatii suplimentare pana la 200 mm grosime, Ferestre termoizolante PVC+termopan, Instalatii electrice/sanitare, Pardoseli, Tabla acoperis, Vopsea exterior/interior, Obloane, Module atasabile de terase, magazii, toaleta.
EXCLUSIV IN SARCINA BENEFICIARULUI: Fundatie/placa, Avize/autorizatii de constructie.
ESALONARE PLATI: 30% la semnare contract, 30% la finalizare fabricare, 40% la montaj.
Specificații produs
Descriere detaliată
Dotări Incluse
| Lemn utilizat | Pin Nordic cu creștere lentă |
|---|---|
| Pereți / configurație | Neizolată. Lemn masiv de 44mm |
| Ferestre Lemn cu sticla dubla | 2* 138 cm x 105 cm |
| Uși Lemn cu sticla dubla | 1* 85 cm x 192 cm |
| Camere / număr | 1, 2 |
| Protecție lemn / Tratament lemn | fungicid si insecticid |
| Garanție Antiputrezire | 10 ANI |
| Acoperiş / configurație | panouri lemn pin nordic 20 mm nut si feder |
| Acoperiș / grinzi | Grinzi 130mm x 60mm lemn masiv pin nordic |
| Pardoseală / grinzi | Grinzi 50x70mm sub padoseală tratate antiumezeală prin Impregnare sub presiune in Autoclavă |
| Feronerie montaj kit | Inclus in kit |
| Manual de asamblare | Inclus in kit |
| Proiect construcție | Inclus in kit |
| Izolație | NEIZOLATĂ |
Dotări Opționale (incluse la cerere)
| Pardoseală / configurație (opțional) | panouri 20 mm nut si feder lemn pin nordic |
|---|---|
| Protecție lemn / Vopsea lemn (opțional) | Vopsea ICA / Italia Alb, Gri, Maro, Natur |
| Acoperiș / invelitoare | Tabla sau Șindrilă bituminoasă |
Dimensiuni
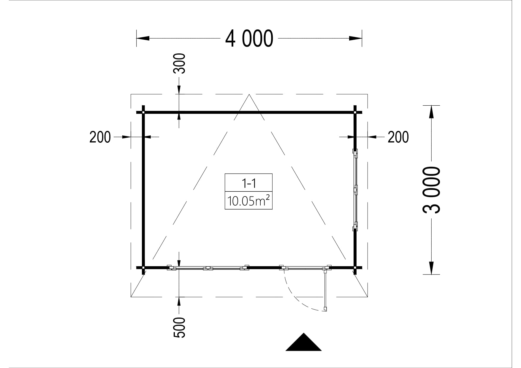
| Dimensiuni / exterior: Lățime x Adâncime (cm) | 4 x 3 |
|---|---|
| Dimensiuni / inălțime la coamă (cm) | 236 |
| Streașină / lățime (cm) | 20, 50 |
| Streașină / inălțime (cm) | 209 |
| Pardoseala / suprafață (mp) | 12 |
| Placa Beton (fundație) / suprafață minimă (mp) | 16 |
| Acoperiş / Suprafață (mp) | 16 |
| Acoperiș / înclinație | 5° |
| Lățime (front) m | 4 |
| Lungime (adâncime) m | 3 |
Alte specificații
| Model | DREUX TP |
|---|---|
| Tip produs/dotări | Casa Pin Nordic |
| Brand | Woodly Pin Nordic |
O căsuță de grădină din lemn cu acoperiș într-o apă sustenabilă, durabilă și ușor de montat
Căsuță de grădină din lemn cu acoperiș într-o apă DREUX TP – soluția ecologică și durabilă ideală pentru un spațiu confortabil și funcțional în grădina ta. Fabricată din lemn cu creștere lentă, această căsuță oferă un aspect natural și elegant. Datorită densității ridicate a lemnului, asigură o rezistență sporită în timp. Materialul provine din surse sustenabile, ceea ce înseamnă că alegerea acestei căsuțe contribuie activ la protejarea mediului înconjurător.
Pe lângă aspectul său prietenos cu natura, căsuța de grădină DREUX TP este proiectată pentru un montaj rapid și eficient. Livrată sub formă de kit DIY, această căsuță include toate piesele pre-tăiate și gata de asamblare. Astfel, nu ai nevoie de echipamente complexe sau experiență anterioară în construcții. Instrucțiunile detaliate și sistemul de îmbinare nut și feder asigură un proces de instalare intuitiv și fără efort.
Datorită versatilității sale, această căsuță modulară din lemn poate fi adaptată pentru multiple utilizări. Poate deveni un birou de grădină, un spațiu de relaxare, un atelier creativ sau un loc de depozitare practic. Ferestrele mari cu geam cu sticla dubla permit pătrunderea luminii naturale, creând o atmosferă confortabilă și primitoare în orice anotimp.
Prin alegerea unei căsuțe de grădină din lemn DREUX TP, beneficiezi de un produs eco-friendly, rezistent și ușor de montat, care îți va îmbunătăți considerabil experiența în aer liber. Indiferent dacă vrei să lucrezi în liniște, să te relaxezi sau să îți urmezi pasiunile, acest spațiu multifuncțional îți va transforma grădina într-un loc special!
Imaginile si videoclipurile au doar scop ilustrativ si pot contine diferente fata de produsul din fabrica. Produsul nu vine vopsit din fabrica.
5.00/5Fotografii și recenzii clienți
- Căsuță de grădină din lemn 12 mp, izolată, vopsită și montată de Woodly în Ilfov







Casută de gradină cu acoperiș într-o apăCasută de gradină cu acoperiș plat
Numai clienții autentificați, care au cumpărat acest produs, pot să scrie o recenzie.














