Case din Lemn. La cheie. In toată România.
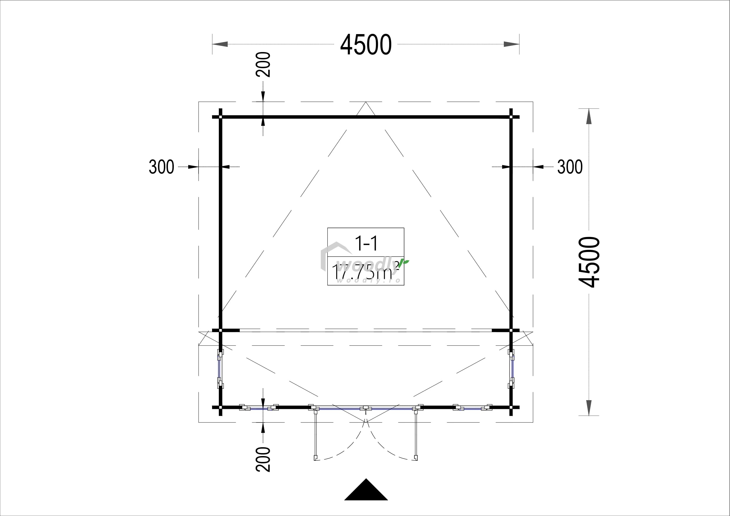
Căsuță de grădină din lemn la cheie, ALABAMA, modulară, 20mp, o cameră, perete unic de 44mm, 4x5m
Căsuță de grădină din lemn ALABAMA, cu design asimetric și lumină naturală din abundență, este ideală pentru relaxare, birou sau depozitare în grădina ta.
VARIANTĂ DE PERETE DISPONIBILĂ:

9.671 €TVA inclus | MONTAJ GRATUIT*
PRETUL INCLUDE: Kitul din lemn (pereti, grinzi, tavane), Usi si ferestre din lemn cu sticla dubla, Feronerie metalica, Tratament lemn, Proiect arhitectural, Izolatie vata bazaltica la modelele cu perete dublu, Montaj gratuit, Garantie pana la 10 Ani in functie de model, Revizii anuale pe perioada garantiei, TVA.
DOTARI OPTIONALE (neincluse in pret): Izolatii suplimentare pana la 200 mm grosime, Ferestre termoizolante PVC+termopan, Instalatii electrice/sanitare, Pardoseli, Tabla acoperis, Vopsea exterior/interior, Obloane, Module atasabile de terase, magazii, toaleta.
EXCLUSIV IN SARCINA BENEFICIARULUI: Fundatie/placa, Avize/autorizatii de constructie.
ESALONARE PLATI: 30% la semnare contract, 30% la finalizare fabricare, 40% la montaj.
Specificații produs
Descriere detaliată
Dotări Incluse
| Lemn utilizat | Pin Nordic cu creștere lentă |
|---|---|
| Pereți / configurație | Neizolată. Lemn masiv de 44mm |
| Ferestre Lemn cu sticla dubla | 4* 70cm x 192cm |
| Uși Lemn cu sticla dubla | 1* 161 cm x 192 cm |
| Camere / număr | 1, 2 |
| Protecție lemn / Tratament lemn | fungicid si insecticid |
| Garanție Antiputrezire | 10 ANI |
| Acoperiş / configurație | panouri lemn pin nordic 20 mm nut si feder |
| Acoperiș / grinzi | Grinzi 130mm x 60mm lemn masiv pin nordic |
| Pardoseală / grinzi | Grinzi 50x70mm sub padoseală tratate antiumezeală prin Impregnare sub presiune in Autoclavă |
| Feronerie montaj kit | Inclus in kit |
| Manual de asamblare | Inclus in kit |
| Proiect construcție | Inclus in kit |
| Izolație | NEIZOLATĂ |
Dotări Opționale (incluse la cerere)
| Pardoseală / configurație (opțional) | panouri 20 mm nut si feder lemn pin nordic |
|---|---|
| Protecție lemn / Vopsea lemn (opțional) | Vopsea ICA / Italia Alb, Gri, Maro, Natur |
| Acoperiș / invelitoare | Tabla sau Șindrilă bituminoasă |
Dimensiuni
| Dimensiuni / exterior: Lățime x Adâncime (cm) | 4 x 5 |
|---|---|
| Dimensiuni / inălțime la coamă (cm) | 317 |
| Streașină / lățime (cm) | 30 |
| Streașină / inălțime (cm) | 223 |
| Pardoseala / suprafață (mp) | 20 |
| Placa Beton (fundație) / suprafață minimă (mp) | 9 |
| Acoperiş / Suprafață (mp) | 26 |
| Acoperiș / înclinație | 15°, 17° |
| Lățime (front) m | 4 |
| Lungime (adâncime) m | 5 |
Alte specificații
| Model | ALABAMA |
|---|---|
| Tip produs/dotări | Casa Pin Nordic |
| Brand | Woodly Pin Nordic |
Căsuță de grădină din lemn Pin Nordic ALABAMA – Estetică modernă și confort în aer liber
Dacă ești în căutarea unei casute din lemn elegante de grădină, modelul casuta de gradina ALABAMA combină funcționalitatea cu un design atrăgător. Ferestrele mari și ușile vitrate creează un spațiu interior luminos și confortabil, în timp ce ferestrele suplimentare din partea superioară adaugă un detaliu sofisticat și asigură și mai multă lumină naturală.
Datorită designului său asimetric non-standard, această căsuță este perfectă pentru cei care își doresc un model mai rafinat și diferit de cabanele tradiționale. În plus, prolopola laterală a acoperișului creează un spațiu suplimentar perfect pentru relaxare, oferind protecție împotriva soarelui și a ploii.
Construită din lemn de pin nordic, această căsuță de grădină din lemn este durabilă, estetică și eco-friendly. În funcție de preferințele tale, poate fi folosită ca spațiu de lucru, loc de relaxare sau chiar ca un mini-refugiu în grădină.
Dacă ai visat la o căsuță compactă și modernă, căsuță de grădină din lemn Pin Nordic ALABAMA este soluția ideală pentru a adăuga un plus de stil și funcționalitate grădinii tale!
Imaginile si videoclipurile au doar scop ilustrativ si pot contine diferente fata de produsul din fabrica. Produsul nu vine vopsit din fabrica.
Numai clienții autentificați, care au cumpărat acest produs, pot să scrie o recenzie.















Recenzii
Nu există recenzii până acum.