Case din Lemn. La cheie. In toată România.
Căsuță de grădină din lemn la cheie, NATURA, modulară, 20mp, o camera, 4x5m, perete unic 44mm, acoperis in doua ape
Transformați-vă grădina cu această căsuță din lemn pin nordic de 20 mp, perfectă pentru relaxare sau spatiu de lucru! Beneficiați de un acoperiș în două ape și o consolă masivă, care creează o zonă umbrită ideală pentru momente de neuitat în aer liber.
VARIANTĂ DE PERETE DISPONIBILĂ:

6.983 €TVA inclus | MONTAJ GRATUIT*
PRETUL INCLUDE: Kitul din lemn (pereti, grinzi, tavane), Usi si ferestre din lemn cu sticla dubla, Feronerie metalica, Tratament lemn, Proiect arhitectural, Izolatie vata bazaltica la modelele cu perete dublu, Montaj gratuit, Garantie pana la 10 Ani in functie de model, Revizii anuale pe perioada garantiei, TVA.
DOTARI OPTIONALE (neincluse in pret): Izolatii suplimentare pana la 200 mm grosime, Ferestre termoizolante PVC+termopan, Instalatii electrice/sanitare, Pardoseli, Tabla acoperis, Vopsea exterior/interior, Obloane, Module atasabile de terase, magazii, toaleta.
EXCLUSIV IN SARCINA BENEFICIARULUI: Fundatie/placa, Avize/autorizatii de constructie.
ESALONARE PLATI: 30% la semnare contract, 30% la finalizare fabricare, 40% la montaj.
Specificații produs
Descriere detaliată
Dotări Incluse
| Lemn utilizat | Pin Nordic cu creștere lentă |
|---|---|
| Pereți / configurație | Neizolată. Lemn masiv de 44mm |
| Ferestre Lemn cu sticla dubla | 2* 138cm x 105cm |
| Uși Lemn cu sticla dubla | 1* 161cm x 192cm |
| Camere / număr | 1, 2 |
| Protecție lemn / Tratament lemn | fungicid si insecticid |
| Garanție Antiputrezire | 5 ANI |
| Acoperiş / configurație | panouri lemn pin nordic 20 mm nut si feder |
| Acoperiș / grinzi | Grinzi 130mm x 60mm lemn masiv pin nordic |
| Pardoseală / grinzi | Grinzi 50x70mm sub padoseală tratate antiumezeală prin Impregnare sub presiune in Autoclavă |
| Feronerie montaj kit | Inclus in kit |
| Manual de asamblare | Inclus in kit |
| Proiect construcție | Inclus in kit |
| Facilități | Acoperiș extins |
| Izolație | NEIZOLATĂ |
Dotări Opționale (incluse la cerere)
| Pardoseală / configurație (opțional) | panouri 20 mm nut si feder lemn pin nordic |
|---|---|
| Protecție lemn / Vopsea lemn (opțional) | Vopsea ICA / Italia Alb, Gri, Maro, Natur |
| Acoperiș / invelitoare | Tabla sau Șindrilă bituminoasă |
Dimensiuni
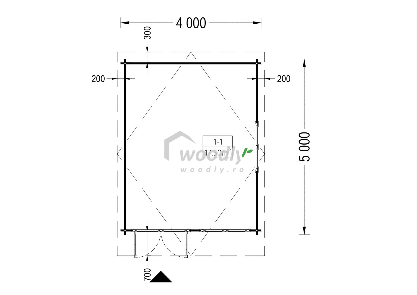
| Dimensiuni / exterior: Lățime x Adâncime (cm) | 4 x 5 |
|---|---|
| Dimensiuni / inălțime la coamă (cm) | 243 |
| Streașină / lățime (cm) | 20, 70 |
| Streașină / inălțime (cm) | 202 |
| Pardoseala / suprafață (mp) | 20 |
| Placa Beton (fundație) / suprafață minimă (mp) | 24 |
| Acoperiş / Suprafață (mp) | 26 |
| Acoperiș / înclinație | 12,2° |
| Volum | 23mc |
| Lățime (front) m | 4 |
| Lungime (adâncime) m | 5 |
Alte specificații
| Model | NATURA |
|---|---|
| Tip produs/dotări | Casa Pin Nordic |
| Brand | Woodly Pin Nordic |
Descriere detaliată Căsuță de grădină din lemn NATURA
Design tradițional și funcționalitate modernă
Căsuța de grădină din lemn NATURA combină estetica tradițională cu funcționalitatea modernă, oferindu-ți un spațiu confortabil pentru multiple utilizări. Ferestrele și ușile cu geam dublu încrucișat adaugă un farmec aparte, menținând în același timp o bună izolare termică și fonică. Acoperișul în două ape, cu consolă masivă, oferă un loc umbros perfect pentru a te bucura de aer liber în orice anotimp.
Materiale premium pentru o durabilitate crescută
Fabricată din lemn masiv de pin nordic de 44 mm, căsuță de grădină din lemn NATURA asigură o construcție solidă, stabilă și rezistentă în timp. Îmbinarea nut și feder oferă o fixare precisă, sporind durabilitatea și izolarea naturală a casei. Structura robustă protejează împotriva intemperiilor, fiind potrivită pentru utilizare pe tot parcursul anului.
Un spațiu versatil pentru orice nevoie
Cu 20 m² la dispoziție, această căsuță poate fi utilizată în diverse scopuri: spațiu de relaxare, birou, atelier de creație, cameră de oaspeți sau depozitare. Designul său compact și eficient se potrivește în orice grădină, oferindu-ți un loc practic și elegant pentru a-ți organiza viața de zi cu zi.
Ușor de montat, ideală pentru orice grădină
Căsuța NATURA vine sub formă de kit DIY, cu piese prelucrate pentru o asamblare rapidă și fără efort. Instrucțiunile detaliate și sistemul de îmbinare nut și feder fac montajul accesibil chiar și celor fără experiență în construcții.
O investiție durabilă și ecologică
Fabricată din lemn natural, sustenabil, această căsuță contribuie la protejarea mediului și oferă un plus de valoare grădinii tale. Finisajele sunt personalizabile, astfel încât să poți adapta căsuța stilului tău personal. Căsuță de grădină din lemn pin nordic de 20 m², cu geamuri cu geam dublu, acoperiș în două ape și construcție fiabilă, perfectă pentru relaxare sau depozitare.
Transformă-ți grădina într-un spațiu confortabil și elegant cu Căsuța NATURA!
Imaginile si videoclipurile au doar scop ilustrativ si pot contine diferente fata de produsul din fabrica. Produsul nu vine vopsit din fabrica.
5.00/5Fotografii și recenzii clienți
- Cabana din Lemn de pin nordic, 12mp, NATURA. Montaj realizat de echipa Woodly în Criva.

Casuță de gradină din lemn montată de Woodly în Cluj



o casuta de gradina Natura.. in mijlocul naturii



Căsuță de grădină din lemn montată în Botosani



Montată complet, de 2 oameni de la Woodly într-o zi în Dambovița
Numai clienții autentificați, care au cumpărat acest produs, pot să scrie o recenzie.

















